Engineering Drawing Services

πŸ—οΈ Complete Engineering Drawings & Estimation Services
At Chhatrapati House Design, we offer a complete package of Engineering Drawings that form the technical backbone of your construction project. From structural stability to utility management and cost estimation β€” our expert team ensures every detail is executed with precision and professionalism.

πŸ“ Our Engineering Services Include:

πŸ”Ή RCC Structure Drawings
We deliver comprehensive Reinforced Cement Concrete (RCC) drawings, including detailed layouts for footings or piling as well as structural load calculations. Whether you need a traditional RCC structure or a PEB (Pre-Engineered Building), our designs are tailored for strength, durability, and safety, ensuring your building stands the test of time.

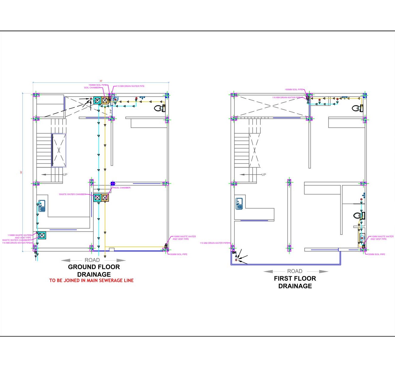
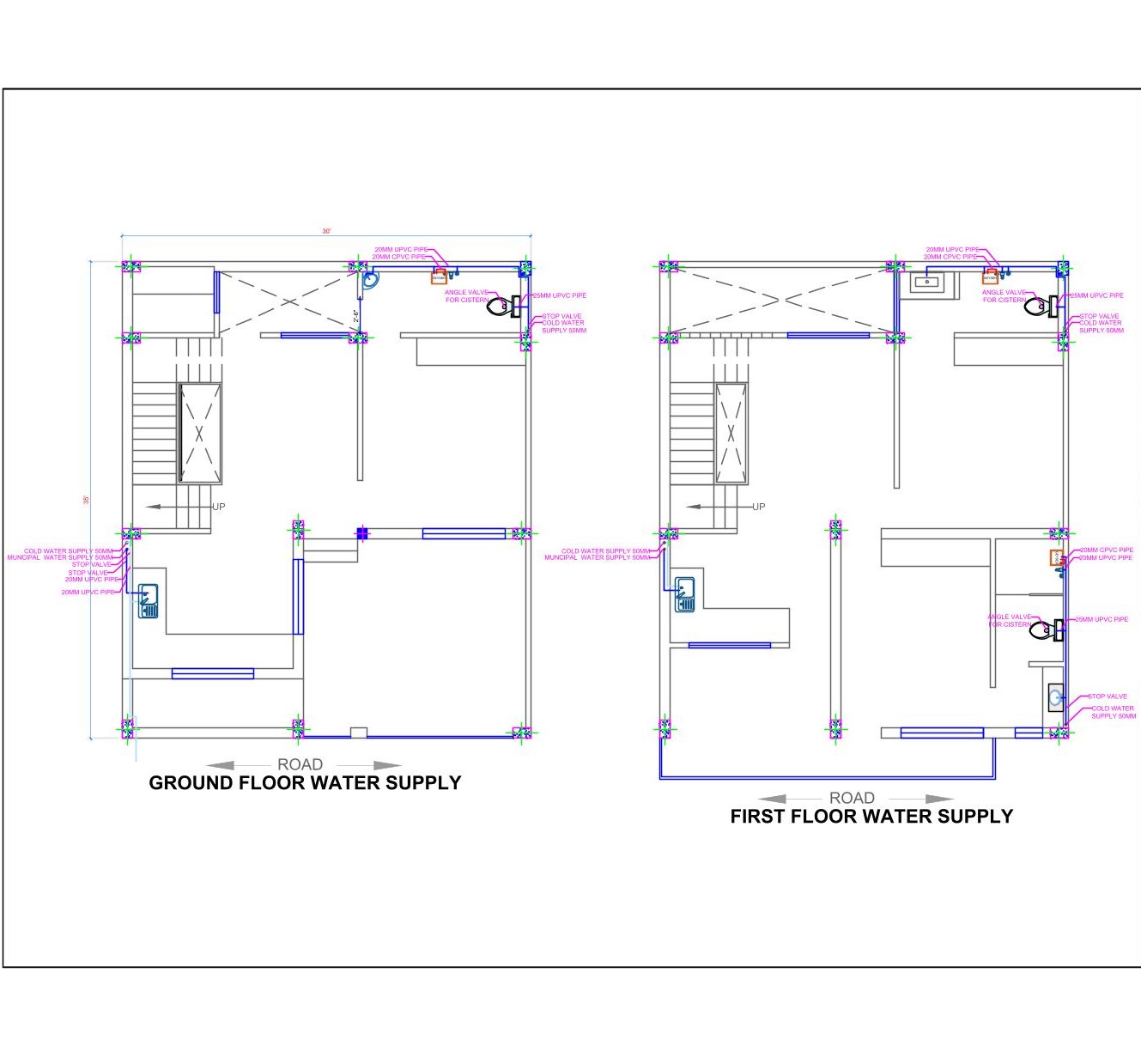
πŸ”Ή MEP Drawings (Mechanical, Electrical, Plumbing & Drainage)
Our MEP designs cover all essential internal services, perfectly aligned with your floor plan. These drawings include:
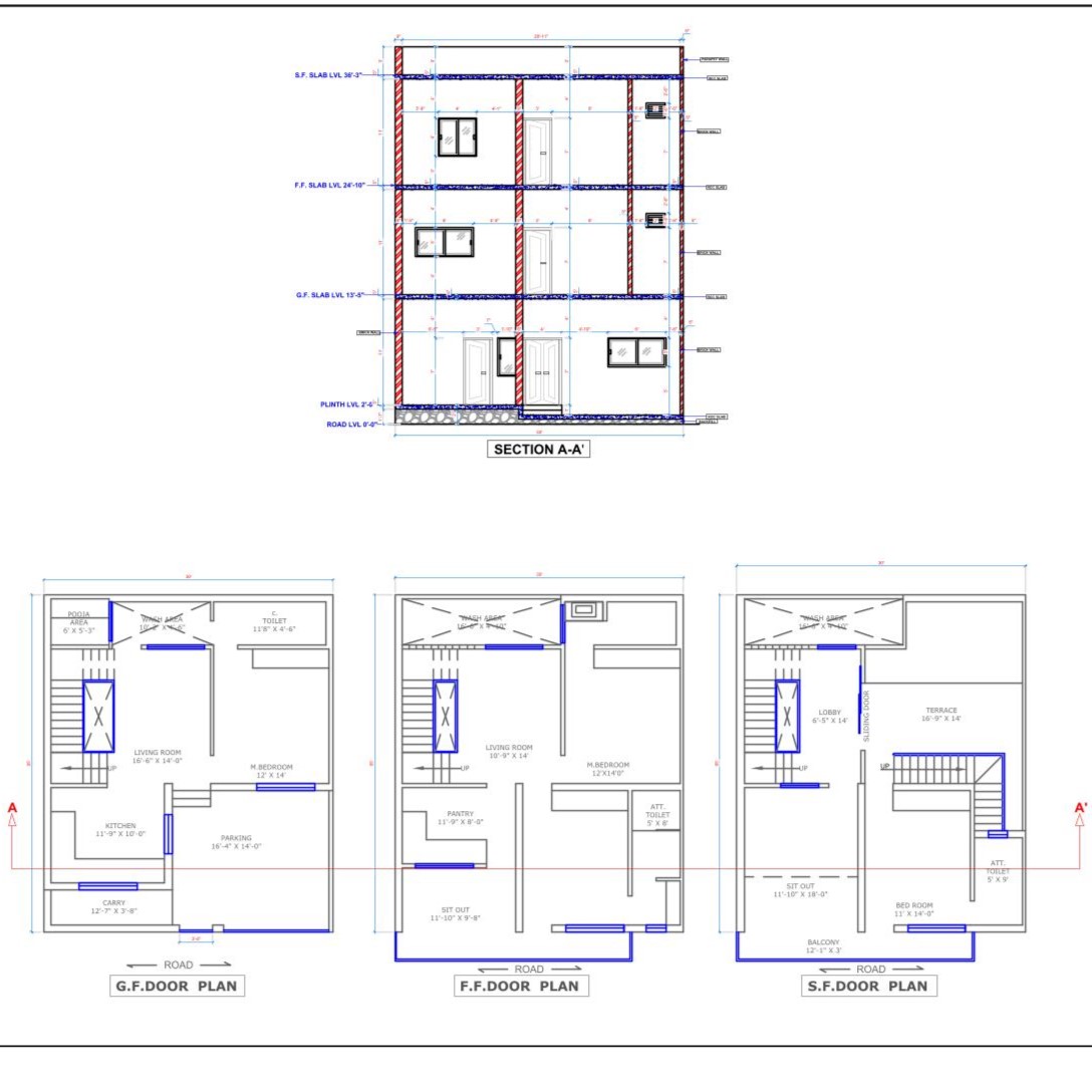
β€’ Dimensional Floor Plans for each level
β€’ Door & Window Details with Legends
β€’ Cut Section A–Aβ€² to show vertical service alignment
β€’ Kitchen & Toilet Fixture Layouts for precise plumbing and fitting points
β€’ Electrical Point Markings, Water Supply & Drainage Lines
β€’ Typical Details for fixtures like washbasins, WCs, geysers, and sinks These technical drawings ensure smooth on-site implementation without confusion or delays.

πŸ”Ή Blueprint / Working Drawings
Our Blueprints are official, site-ready documents that you need to submit to your City Municipality to obtain authorization for constructing your building. These working drawings include all necessary technical details, measurements, and site-specific guidelines required to legally begin your construction.

πŸ”Ή BOQ (Bill of Quantity) & Cost Estimation
We prepare a detailed Bill of Quantity (BOQ), listing all required materials, their quantities, and cost estimates β€” helping you plan your budget accurately and avoid any surprises along the way.

βœ… Why Choose Us?
β€’ 5+ Years of Industry Experience in Architectural & Structural Design
β€’ Site-Ready Drawings for Seamless Execution
β€’ Full Coordination with Engineers & Contractors
β€’ PAN India Service
β€’ Timely Delivery with Professional Accuracy

At Chhatrapati House Design, we specialize in creating Ultra-Modern 3D Cut Section Views that blend creativity with clarity, helping you and your family visualize your dream home like never before.